• dent.talents@henryschein.de
  • Karrierestart
    • Karrieretipps Spezialisierung Adressupdate
  • Gründen
    • Gründer Camp Checklisten und Tipps Leistungen Praxisgründung Veranstaltungen Start-up Stories Team und Beratung
  • Praxisabgabe
  • denttalents.de
  • henryschein-dental.de
dent.talents.
Anzeige hier inserieren
  • Praxen
  • Stellen
  • alle Kategorien

  • Umkreis
  • 5 km
  • 10 km
  • 20 km
  • 50 km
  • 100 km
  • 200 km
von Ortsmitte
Suche speichern
Filtern
  • Praxen
    • Top Kategorien
      • Neugründungen
      • Praxisabgaben
      • Praxisanteile
      Praxen
      entdecken
  • Stellen
    • Top Kategorien
      • Assistenzzahnarzt (m/w/d)
      • angestellter Zahnarzt (m/w/d)
      Stellen
      entdecken
counter image
  1. zurück
  2. Startseite
  3. Kategorien
  4. Praxen
  5. Neugründungen
Eigene Anzeige erstellen
Jetzt Anzeige aufgeben
Meine Notiz

Speichern Löschen Abbrechen
Ähnliche Anzeigen
Alle anzeigen
Meine Notiz

Speichern Löschen Abbrechen

Praxisgebäude Nähe Osnabrück, Münster, südl. Emsland zu vermieten

1790373599
1 €
Neugründungen
  • Erstellungsdatum:
merken Notiz schreiben
Seite drucken
facebook Twitter/X WhatsApp Per E-Mail teilen Anzeige teilen
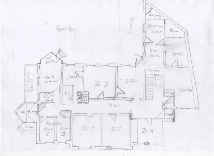
Praxisgebäude Grundriss Erdgeschoss Grundriss 1. OG Grundriss Keller
Übersicht anzeigen Übersicht ausblenden vergrößern verkleinern

Allgemeine Informationen

49XXX
101889

Verfügbarkeit

frühestens 07/26

Standortinformationen

{"ct":"YjuovFNbRG3DU2rx+3mGk86Jx2iBBqHDrz7EMEe2MGJPRtzDHBynJiVCEMyfYrr\/","iv":"bc54178a4c69ca1ac66900cbb9d03c2b","s":"4a2218a44b423613"}y8ky1opvn9nx7tuow9kyrzopk8508139u8k
{"ct":"gtg3mnqBx6YxEjGqpuzT\/w==","iv":"e7fb7993c20b92b939ad1ccfd30dc251","s":"0e0e4d9530e4900c"}4w3xzukk
{"ct":"+ncSnfvPGCcrswzuNLBdug==","iv":"71614993f814574a23de00fabce57a10","s":"d01df9278a0048ae"}k7rz8sp44w
  • {"ct":"xlgRGGwIm9ipVvYbAURH3A==","iv":"960183bd184f0fb989ca5257fcb06fd0","s":"54a37fbf66964230"}twnp4tkp4xry
  • {"ct":"2pLJz+uFjmr8bwcUmjttMyuLvX7aKQtydteGX79VxmE=","iv":"7d985f560aa2ad94af70b8db080aa30c","s":"f23df0c91f3a6773"}899zsu6q0pvv6862wu
  • {"ct":"O7QhQ1wxXQeIbHdJ1eJ1dTFHU9Va3GAOkeqO3e+bViwLGN5dyvNG7t1Jvz6jSkn3","iv":"f0858152f222adddd2a9a6b7ea16c19e","s":"57844a877bcd9026"}so0n22l4u86vzuukow3kl8rn7pssn6p7w89t87my10km
  • {"ct":"mTZnb56OUYvhP1in\/bAj1Q==","iv":"2a1cba86d2a00d452c418f99c99641dd","s":"1b360d6fb34aacd7"}2sxm9rxyq4z5w8
  • {"ct":"MnRzw58lz7ykwFCk6qzFZA==","iv":"7b5ff495719f38538643bf6d2393fa3b","s":"65a9662e3385c807"}xk9nozumny
{"ct":"74g4UT1XHzF1RTrILvtiag==","iv":"2df05a2919e132c3640b6c7dc6ef4e7c","s":"a65afdd22cc8fa0a"}wyk5

Lage im Gebäude

{"ct":"Didqm20faHH78qvFbKqt4w==","iv":"f5d5f8bd8144ef94b39ccb75b7921719","s":"7941e525fca68adc"}m8
  • {"ct":"wlcMAmRDIvqqWbltq+agKg==","iv":"946b85e7583795643fdd6a531013eddb","s":"8eb3405f90891358"}mk1v5w9nt43
  • {"ct":"mXDV1TlX7FYc88qiSBwJpg==","iv":"92b75b0ea9a87174f45aff3a5fd796fc","s":"0e69e7dacbd54f88"}63mnkv01yv0mz55

Parkmöglichkeiten

3
Vorhanden

Details zum Objekt

{"ct":"E\/yCNN1WqokH01tKfSTNSg==","iv":"48a041adcc936ea88ec38131227e3486","s":"03d36aa23c0579e4"}tv4 m²
{"ct":"XogXK5Y5ySE6htWo4tjPqpN6E8w6ONaR5s4YINNSzu4=","iv":"72927d92623da3af3b8e09178c201694","s":"e854d08fc0857542"}mpsru1snskmqqxw2pn2
{"ct":"B3s7E6CKPiWCn98X\/jp2iQ==","iv":"03f9003f938ad25975429f10487b746d","s":"f6d512cf1a3a7afe"}l2
{"ct":"fMYq5cojy8vqwIbkQN2mDA==","iv":"319b494b2c6d6cca15a33d6ba1604407","s":"dfa524f8b2a8281b"}yz2t
{"ct":"bBOyVIs95rYBs\/+wNhSzvwGGSEEE2ggipHBKCQzqmqTgbzdPzwiS0Fvtpiik73bGMd4PqQvT4qTZCziuCgCOZlrstj8CqEp8iX6\/NyQpFBLDqu\/fKhji04100yHmBnu0sfdImrGnSpt+YFBNbY09wg==","iv":"668641dc2ed2ae5f994236f6cde30f6f","s":"729d1555320086e6"}k6l0tt37s1vo44wwknm1wyp5o83z5r5m6ks4ux47mr59mz7tyn5zwkyu4vmloz6m81n1z0pm9624y5vx3w4ktrpp8r3z2o8zunyq0

Anzeige versenden

Wir werden Ihre Nachricht an die eingegebene E-Mail-Adresse weiterleiten.

Beim Versenden Ihrer Nachricht ist ein Problem aufgetreten. Bitte prüfen Sie Ihre Angaben oder wenden Sie sich an den Portalbetreiber.

Kontakt aufnehmen

Danke für Ihre Nachricht, diese wird an den Anbieter weitergeleitet.

Beim Versenden Ihrer Nachricht ist ein Problem aufgetreten. Bitte wenden Sie sich an den Portalbetreiber.

Die angegebenen Daten werden zur Abwicklung der Anfrage verwendet und gespeichert. Weiterhin nehmen wir diese Daten zur besseren Anfragenabwicklung in unsere interne Kundendatenbank auf. Ihre Nachricht wird an den Anbieter des Angebots sowie Dritte, die für uns im Auftrag tätig werden (z.B. Hostingsdienste) weitergegeben. Weitere Informationen zum Datenschutz bei Henry Schein finden Sie unter Datenschutz.

Anzeige melden

Danke für Ihre Nachricht, diese wird an den Anbieter weitergeleitet.

Beim Versenden Ihrer Nachricht ist ein Problem aufgetreten. Bitte wenden Sie sich an den Portalbetreiber.

Die angegebenen Daten werden zur Abwicklung der Anfrage verwendet und gespeichert. Weiterhin nehmen wir diese Daten zur besseren Anfragenabwicklung in unsere interne Kundendatenbank auf. Ihre Nachricht wird an den Anbieter des Angebots sowie Dritte, die für uns im Auftrag tätig werden (z.B. Hostingsdienste) weitergegeben. Weitere Informationen zum Datenschutz bei Henry Schein finden Sie unter Datenschutz.

Beschreibung

{"ct":"3P9\/Gt4tL7ngfWPsS570sEcFiDLrGkfS4eb79C6julEJVoj0ADjm4txrWuzeRXJyN4FVuFNEwfjUyZyA\/rUJT82d4G1z5VIvILutcjboyljy5PsKVuq32vqSk+nqQAbne3g0+5lMYb+5q0MfQ6ZnU8ZRbfiXvpPGh7aYNUJ3+rCiL+vIqn0IgRjB7UgMp5u5Iu7CcXopJxlNStnLK6c+QUhPsB8gbyTob9\/K5agBjaiStdFL4HWXtvbPQldS8pS5N2YK\/2PIvu+QNIffVnjnWL+KjyeC+9bCwEH7NwJLumsMaL9D1Cf3gg2RVsuLj2ZWdJFgBvzOeI1TOjPriy8C49DVV9f\/y4XMQWRevCwWJTSIN4l6fNCWpDzq6v+O5iTwXDyLIGfauqjSfEFid\/1o5BqkXJzkw2OIcBXf\/GQnYNC1ObkRRhgXntwPEbxHj+CwuXKe6lxxZZKXK6xW3UwHG6SqvymChw2AR8cJPHDBeI2B19vOd06eJhBqrSj13NgP9BhFE0ETlZEU5An3FSRTj6bwJ5YuvN8JD3dhBE9rDRORlEZKtDGvFSyvbfWuT1hjL1TNWS+G6cf7ZZqxbcz\/g1mnQybSzcQJYpl0U3DfN74oMeq00LyjueviUUFHE\/k6cQfP\/u6QdN7kNpJgUx0j0lhW0jdywp\/s8JLedkDri7aYe5aN0k0eXk5Rp\/+rp69p1GcYlYiyAb8foWyiHXqxnV44FXn1XxuTarFQSZ2AzA02Ex3aZkkzr9O0FiHDzybFn9HtAm2\/YA32ugfcpwt5YMEYOjzwwLh+IyszYRFA5dMIj4xmUOkdskMMU0fI5WICQa2i8NMDQ8RnaaVP\/H2qNw==","iv":"3c270d3b6c05b0dfa5826c82be7b23ff","s":"288d7c4ddb0cdbfc"}6uv0moqkptv7kpnqpk5y0q86sonkwtur48x87339x3mp23ysxs9mor4snq2u7s3spr0st47or68vtlwkr2wmkl3lkkt5q6s57s5l0xoys87qloqy4qqrk2z166199y27yqw43vl5r164zsuy10nqprwsw02s01kk9lm4kuy7qnuw3596xylyv603yw7nq7os0388nryrqy129384919snps7xrw70s57tmqsv5ln0lzpk3y8z4qo2r7v60r6yx5p33xnzsp91tm5lrp3v03pl35oltqwryyk78trl8xwwn8q0w5s3vw3o8vz5vx57l51t0y349n8v7sm95llyn5pukvwqmwtulys548r6tt4mrln9wuz26ook8y686uwzms8427vy5xmwzkl0o3uzy4w2yyw1pm1m019m62ms5wu0pwml9r1qlw2s8t4s805qk62y79l447olkpzr7u75vuk455t12s3nl2msmrlr5qppw3z2nnlq9ukomkm3tz0nq4xoz05ypu5964p1opz2zz6o6289nz7oy5683tsvq49mp4s66r0o9upmr42xqs760593598399mmr2k1twlxon1vyyvsr2u2qn34wq5mz964xqwk99tp2nkrxsqv1zl

Frau {"ct":"XlL0HSXNJDpD5zYx7p3+qw==","iv":"17e724dadcfadd5acdacb1027155204f","s":"0f488a2e5b31e4a1"}6t0yuvr {"ct":"3n8Vqg734Y+tEc+rdTzwQw==","iv":"ed701331a5ad9c740171072b4019964f","s":"414c06b529a22b1e"}to5z

{"ct":"lwYUTaHZd5OhC8+4UvzeX1ywjSIlj6Hmsq7aXEpRvGg=","iv":"d22e073d3a061186c50db23a9a2e4335","s":"636253e0f1367164"}wqkpvn9q6k2oop0rvplok49r31l4p1
{"ct":"1KJVeX4xhKuxGzPxTdtVog==","iv":"87a85fa8fe2f976bff3ae3193da437f4","s":"7543d10286960739"} {"ct":"9vATTr+TiNSoeBROIHi5BQ==","iv":"c46ad83f4d13ca6a449217c4ff69622d","s":"fa5e7b0eebc6cdf7"}mzv85, {"ct":"ig56QCQpT\/vqcMIwhDKgiA==","iv":"f54797b8e96522f34953dc761994c725","s":"f70e9852d6c0d43d"}4q3sy80um7w
Telefonnummer anzeigen {"ct":"ZELUfkMgZULXRNmK22Re27njxRMx+baGuEdObyO1uik=","iv":"0a3f6b32a06d4cefd48b3de26896f0d7","s":"cfdfce4c1f530aa9"}5wr068979x3pxpr6
Handynummer anzeigen {"ct":"GgM2iODa07qMW4Hk8P1j6w==","iv":"cb4c6c0912ee6ffb73e756fbdf28b47a","s":"c8e7d14b68e10617"}s98lmut4w477qv8
E-Mail anzeigen {"ct":"y\/QiB2VNSNXMJZwgO7M4\/Wm1NoDAtdbQeVkrrlXWABlMaVe1q+6msvH9435E9wzZhXQfxzeOPD3WEj0mGWvaiQ==","iv":"4a206d67c6b8235531cede30e7a2b256","s":"2a02926232319cff"}6t7psmvr8xrsz38sky31877409001qrw2x63no83733mnkx9vy6oss
Anzeige melden
Profil anzeigen
Anzeige melden

Der Inserierende ist für die Richtigkeit, Aktualität und Vollständigkeit der Angaben verantwortlich. Das gilt auch für die Urheberrechte möglicher Abbildungen. Die Henry Schein Dental Deutschland GmbH übernimmt keine Verantwortung für die Inhalte und ist nicht verpflichtet, die Richtigkeit der angegebenen Informationen zu überprüfen.

Das könnte Sie auch interessieren

Alle Anzeigen
Filter
Suche zurücksetzen
von Ortsmitte
Angebot
Geschenk
Gesuch
Alle Filter ausklappen
Zuletzt gesucht

    Ihr Suchauftrag wurde erfolgreich gespeichert.

    Suche speichern und kein Angebot mehr verpassen

    • sofort
    • täglich
    • 2 x täglich
    • wöchentlich
    Wir gehen vertrauensvoll mit persönlichen Daten um:
    Die angegebenen Daten werden zur Zusendung von neuen Angeboten gemäß der gewählten Suchkriterien verwendet und gespeichert. Es kann erforderlich sein, dass Daten an Dritte weitergegeben werden, die für uns im Auftrag tätig werden (z. B. Hostingdienste). Weitere Informationen zum Datenschutz bei Henry Schein unter Datenschutz. Henry Schein Dental.
    • Kartenansicht
    • Listenansicht
    • dent.talents
    • Über uns
    • Kontakt
    Instagram Facebook
    Folgt uns auf Social Media!
    Newsletter
    Newsletter

    Einmal anmelden, nie wieder Neuigkeiten verpassen!

    Jetzt anmelden
    Kontakt
    Henry Schein Dental Deutschland GmbH

    Team Stellen- & Praxisbörse
    Monzastraße 2a
    63225 Langen

    dent.talents@henryschein.de

    Logo
    © 2026 dent.talents.
    • Impressum
    • AGB
    • Datenschutz
    • Barriere melden
    • Accessibility-Modus aktivieren
    • Kontrastmodus aktivieren
    • Barrierefreiheit
    • zur Navigation
    • zum Inhalt

    Barriere melden

    • Profil
    • Karrierestart
      • Karrieretipps Spezialisierung Adressupdate
    • Gründen
      • Gründer Camp Checklisten und Tipps Leistungen Praxisgründung Veranstaltungen Start-up Stories Team und Beratung
    • Praxisabgabe
    • denttalents.de
    • henryschein-dental.de
    • Impressum
    • AGB
    • Datenschutz